Colegio rural Haiti
Créditos
Autores de proyecto | Arturo de Armas (Arquitecto) y Patricia Zárate (Pedagoga)
Proyecto | 2019
Superficie | 4000m2
Infografías | Arturo de Armas
Cliente | ONG TECHO Haití
La primera fase de contacto surgió de una investigación exhaustiva de la cultura haitiana, considerando aspectos como el costo, el clima, la ecología, los terremotos, la deforestación y la disponibilidad de recursos.
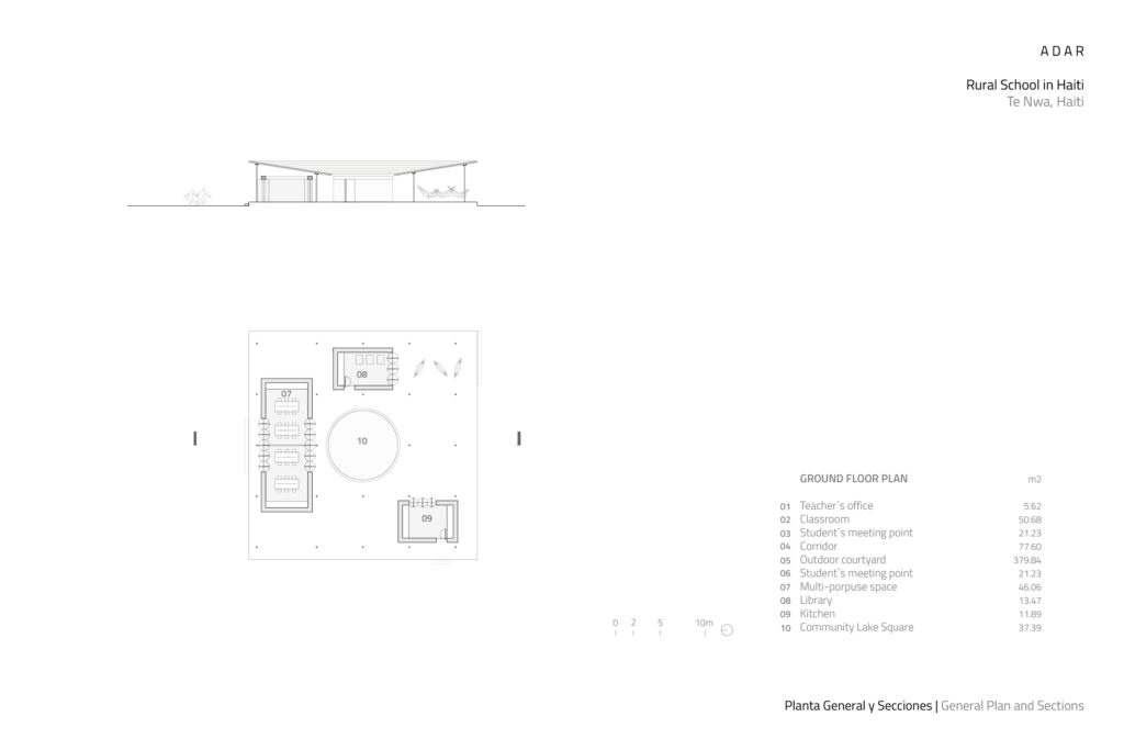
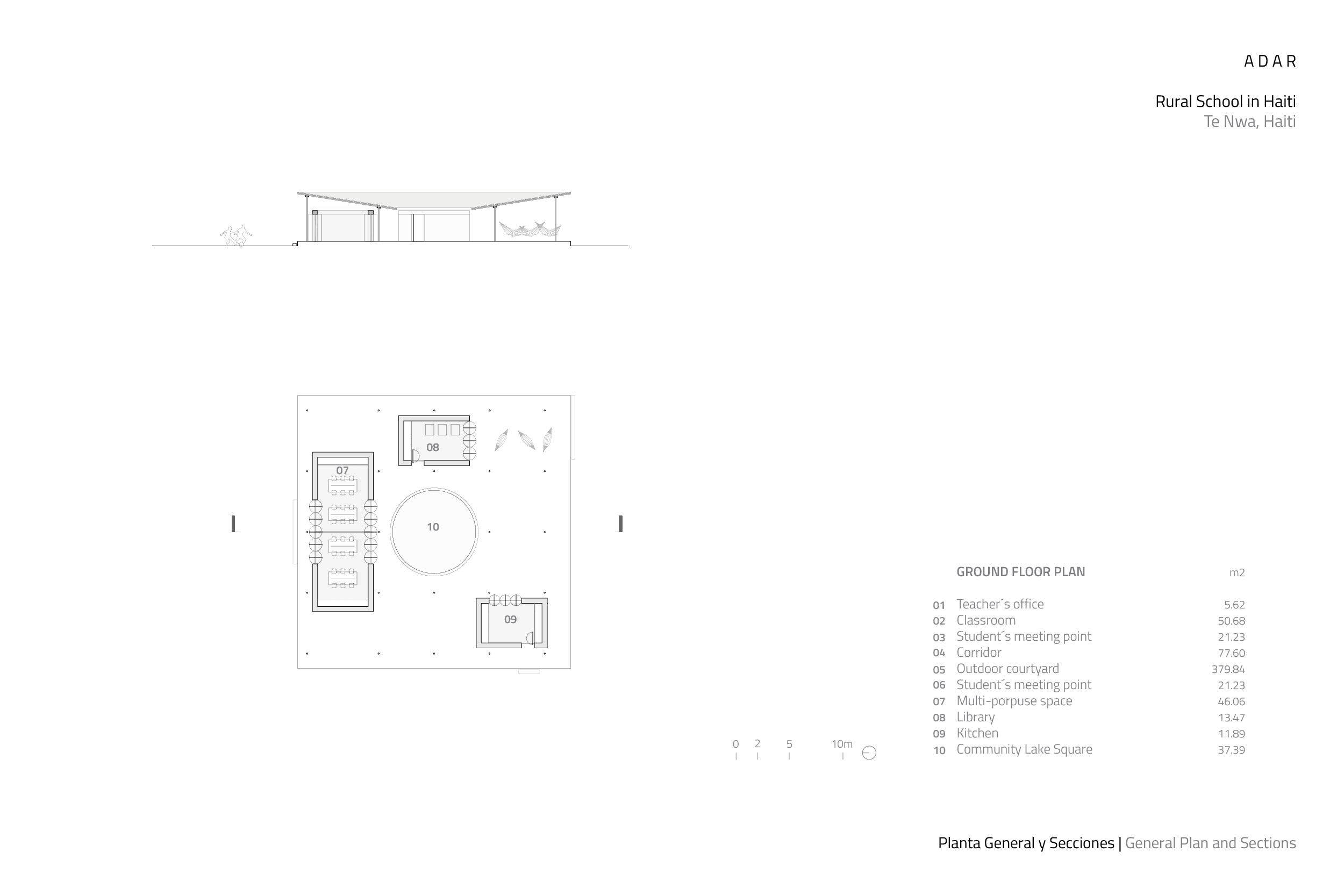
La estructura juega un papel fundamental en el diseño, está formada por dos partes principales: el recinto (tierra apisonada) y el techo (bambú), ambos actuando como bloques separados cuando se enfrentan a un terremoto. Esta independencia también es esencial para la ventilación e iluminación, permitiendo que el aire caliente se escape y creando una temperatura agradable dentro de las aulas, permitiendo además que entre una mayor cantidad de luz del norte.
Los espacios creados son ambientes de aprendizaje que invitan a crear y a jugar. La armonía de la accesibilidad hace una relación agradable entre los módulos escolares donde se compensa la comunicación horizontal y vertical.
Por último, la escuela está habitada por telas de colores para introducir la cultura haitiana, una importante forma de arte que se utiliza sobre todo para la ropa tradicional.







